Ванная комната
Ванная комната – территория с повышенным уровнем влажности, поэтому очень важно установить именно влагозащитные розетки. Это главный вопрос безопасности

Выключатель общего света у двери располагается по стандарту (75 – 90 см от пола, 10 – 15 см от дверного проема).

Около раковины
Рядом с раковиной розетки располагаются на высоте 60 см от пола и 50 – 60 см от ближайшего источника влаги. В основном необходимо установить не менее двух розеток. Одна нужна для подключения техники (фен, бритва), другая – для подсветки зеркала.

Рядом с ванной
Если в ванной или душе предусмотрен гидромассаж, то необходимо установить одну розетку. Она располагается на высоте 100 см от пола, не ниже выводов коммуникации водоснабжения.

Рекомендованная высота по нормативным документам
Розетки на кухне
Кухня – это самая насыщенная эл.приборами комната во всем доме.
Главное правило здесь – не придерживайтесь никаких стандартов и размеров до разработки дизайн-проекта кухонной мебели. 
Все расстояния под штробление выбираются и согласуются только после получения на руки проекта.
холодильник
варочная панель
духовой шкаф
посудомоечная машина
кухонная вытяжка
Обычно всю крупную стационарную технику советуют подключать к розеткам, размещенным в цоколе гарнитура. 
Высота установки – половина высоты цоколя. 
Совет опытных мебельщиков – если не хотите в дальнейшем проблем с этими розетками, НИКОГДА не размещайте их в цоколе.
Просто нагнитесь под кухню и вытяните туда руку. По глубине это чуть больше полуметра.
Выдернуть оттуда вилку у вас еще получится, а вот вставить ее обратно без матюков невозможно.
Многие современные электронные приборы часто зависают и запускаются заново только при помощи принудительной перезагрузки (вкл-выкл из розетки).
Не говоря уже про пыль, которую вы будете каждый раз собирать своей одеждой.
Также розетки иногда выгорают и их приходится менять. Особенно это касается мощных кухонных приборов.
Для замены такой “удобной” розетки в цоколе, вам придется разбирать половину кухни.
А еще в жизни случаются потопы
Прорывает трубу у вас или помогают соседи, не важно
Важно, что вы и ваши дети окажетесь по щиколотку в воде, а электрическая розетка напряжением 220V при этом будет всего в 5см от пола!
Также никогда не монтируйте розетки непосредственно за подключаемой техникой. Многие инструкции напрямую запрещают это делать.
Всегда выбирайте наиболее доступное место, можно даже за ящиками – 30-60см от пола.
Даже самый “говнянный” механизм ящика снимается легким движением руки и через аккуратное отверстие-окошко в ДВП можно всегда получить доступ к розеткам. 
“За техникой” разрешается ставить розетку на вытяжке (за коробом) и за СВЧ печью.
Микроволновка – это как правило не глубокая техника, и “задняя” розетка при глубине пенала в 60см нисколько не будет мешать ее установке. 
Что касается встроенных холодильников, то если нет возможности подключить его справа или слева в соседних шкафах, то розетку располагают сверху, над холодильником. 
Неслучайно большинство холодильников имеют неровную высоту (1,77м или 1,93м), поэтому у вас всегда остается сверху запас, куда вы можете поставить розетку.
Чтобы отключить такой холодильник, никакого инструмента кроме табуретки вам не понадобится.
Устанавливаются они на высоте 110см от уровня чистого пола или 15см от столешницы при утвержденном проекте кухонной мебели.
На этой же высоте рекомендуется монтировать и выключатель подсветки фартука и рабочей поверхности.
Все розетки над кухонной столешницей должны располагаться в основной и вспомогательной зоне готовки в удобном доступе.
Если рабочая зона кухни достаточно большая, то блоки розеток следует размещать с шагом не более 120см. 
Главное правило, которого нужно придерживаться – их нельзя располагать непосредственно рядом с мойкой и варочной панелью.
Также минимальное расстояние от розеток и выключателей до газопроводов (подвод к газовой плите на кухне) должно быть не менее 50см.
Правила расположения электроточек в разных помещениях
Точки электродоступа для телевизоров и компьютерной техники
Представить себе современную квартиру или дом более-менее состоятельных людей без телевизора и компьютера практически невозможно. Соответственно, для них необходимы отдельные розетки, и, как правило, не одна, а хотя бы две-три.
Подвод обычно ведется в штробах по стенам или потолку, реже в плинтусах (кабельные каналы). При этом необходимо подвести не только обычный электрический кабель, но и антенный, «витую пару» (сетевой кабель), соответственно и точек подключения будет две-три.
На фото слева направо: две обычные точки, гнезда для подключения антенного кабеля и витой пары.
Расположить группу гнезд можно по-разному, что и показано на схеме (вместе с размерами – расстояниями до пола и углов комнаты).
Таким образом, может быть и 15…30 см (если они расположены открыты или за тумбой для TV, и 800…1200 мм (если группа скрыта за смонтированным на стену телевизором или размещена рядом с ним).
Тем, кто использует домашний кинотеатр, потребуется еще больше гнезд электросети. При этом, чтобы избежать путаницы проводов, лучше размещать группы отдельно.
В отношении комьютерщиков все еще сложнее. С учетом количества периферийных устройств розеток может потребоваться пять, семь, десять и даже больше. При этом почти наверняка пригодится специальное гнездо для подключения витой пары. Часто розетки размещают не на стене, а на специальном столе или под ним – в зависимости от того, как расположена техника.
Очень удобны в этом плане специальные стойки, ножки для столов, накладные элементы с группами гнезд разного типа.
При этом сразу необходимо учитывать необходимость маскировки большого количества проводов, поскольку вне зависимости от расположения розеток на столе или под столом они просто мешают.
Для этого используют кабельные стяжки, специальный крепеж, крепят планки с кабельными каналами, заказывают мебель с подготовленными местами для крепления – в общем, вариантов масса.
Высота розеток на кухне
Проводка на кухне — это целая система. Во-первых, на каждый мощный прибор идет отдельная линия электропитания с установленным на ней автоматом защиты и УЗО. Таких приборов может быть до 10 штук (посудомоечная машина, духовой шкаф, электроплита, стиральная машинка, электрический водонагреватель, встраиваемая бытовая техника большой мощности). Эти розетки надо выводить в то место, где планируете ставить приборы.
Выделенные линии для мощных электроприборов
Выделенная линия нужна на холодильник. Но причина тут не повышенна мощность потребления, а скачки напряжения, которые создает мотор холодильника при включении и выключении. Лучше чтобы другие приборы ощущали их по минимуму, а возможно это при наличии отдельной линии. Розетку для холодильника можно делать на любой высоте — хоть на 5 см от пола, хоть на уровне локтя (110-120 см).

Высота розеток на кухне для разной бытовой техники
Выделенная линия электропитания с УЗО и автоматом обязательна на газовый котел отопления. Для него требуется стабильное напряжение, и отдельная линия просто необходима. Располагать эту розетку надо с учетом того, что потребуется установка стабилизатора напряжения (если он не установлен на всю квартиру или дом). Лучший вариант — сбоку от котла. Справа или слева — это как позволяют обстоятельства.
Выбираем высоту в зависимости от подключаемого оборудования
Для встраиваемой бытовой техники высота розеток от пола — 10 см (это от пола до центра розетки, а от нижнего ее края — около 5 см). Их располагают на стене позади техники. Расположение такое, чтобы через цоколь можно было дотянуться. На этом же уровне ставят точку электропитания для стиральной машинки. Ее можно сделать и выше, если шкафчик для мойки без задней стенки.
Для подсветки и вытяжки розетки делают над шкафами. Их нижний край находится на 5- 10 см выше шкафов. Выключатель подсветки выводят на рабочую стенку, располагая его сразу под верхними шкафчиками.

Можно сделать таким образом. Основное — удобство эксплуатации
Остальную мелкую бытовую технику ставят обычно на рабочем столе, соответственно подключать их удобно почти сразу над столешницей. Высота розеток от пола в этом случае — 110-120 см. Это будет около 15-20 см выше столешницы. Как раз так, как нам нужно. Если вы заказываете кухонный гарнитур нестандартной высоты, соответственно корректируйте и положение розеток.
Розетки для мелкой кухонной бытовой техники группируют по три-четыре штуки рядом. Это удобно при эксплуатации и более приемлемо при монтаже. Определяетесь, с какой техникой где будет удобно работать, считаете количество единиц, которые надо будет включить одновременно, добавляете одну-две «на всякий случай». Это и будет требуемое количество розеток. Их высота — те же 15-20 см выше столешницы, то есть относительно пола будет 100-120 см.
Подготовка к монтажу, правильное проектирование
Установка и переустановка начинается с составления подробного плана. В нём отражается точное место каждого прибора, размеры и количество. При разработке проекта следует учитывать расположение линий энергоснабжения и распределительных коробок. Выбрать правильную высоту от уровня пола. Чем подробнее план и чем лучше он привязан к «местности», тем меньше затрат понадобится на его реализацию. Практика показала, что грамотно продуманный проект экономит до 20% средств и до 30% времени.
Видео: розетки на кухне
Для того чтобы проект в полной мере соответствовал реальной картине, на нём должны отражаться:
- Дверные и оконные проёмы.
- Местоположение мебели, бытовой техники и компьютерной сети.
- Зоны повышенной опасности: водоснабжения и газопровода.
Очень важно правильно подобрать сечение токонесущих кабелей. Суммарная мощность потребителей не должна превышать пропускную способность проводника
Розетки и выключатели выбираются заводского изготовления и с номинальными характеристиками, соответствующими параметрам сети. (230 В и 6 А).
В детских комнатах целесообразно устанавливать розетки с автоматическими запорными шторками. В санузлах — устройства с индексом IP 66 (показатель максимальной влагостойкости). Снаружи дома рекомендуется использовать розетки, снабжённые крышкой.
Устанавливаются розетки снабжённые дополнительными средствами защиты
Также следует придерживаться простых правил:
- Расстояние между выключателями и системами инженерных коммуникаций — не менее 0,5 м.
- Расстояние от кухонной мойки — не менее 0,8 м.
- Промежуток между выключателем и наличником двери (окна) – от 0,1 м.
- Для стационарных электроприборов (телевизор, стиральная и посудомоечная машина, компьютер) устанавливаются отдельные розетки, расположенные к ним в непосредственной близости.
Для наружного расположения
Наружная проводка имеет ряд неоспоримых преимуществ. Прежде всего — это доступность всей линии электропередачи и относительная простота установки. Для такого вида проводки не нужно штробить стены и устанавливать в каждой точке подрозетники. В случае переформатирования разводки, все линии быстро и легко демонтируются без нарушения внешнего вида. Также легко собираются вновь. Использование кабель-каналов позволяет мобильно добавлять новые линии в случае необходимости.
Устройство наружной проводки при помощи кабель-каналов
Разводка кабелей в виде витой пары на изоляторах придаёт интерьеру оригинальность в стиле «ретро».
Прокладка кабелей в виде витой пары
Однако некоторые характеристики невыгодно отличают наружную проводку от скрытой. Это больший риск механического повреждения и контакта с токопроводящими (или горючими) поверхностями стен. Поэтому при монтаже предусмотрены дополнительные защитные мероприятия. Так, например, каждая точка должна быть оборудована подложкой из диэлектрического материала. А расстояние провода от стены не должно быть менее 10 мм. При выборе выключателей и розеток следует отдавать предпочтение тем приборам, которые изготовлены из качественного пластика и имеют толстостенный корпус.
Для скрытого расположения
При обустройстве скрытой проводки риски механических повреждений значительно ниже. Механизмы устанавливаются внутрь стены, кабеля «прячутся» в специально подготовленных каналах — штробах. Такая работа, конечно, более затратная и трудоёмкая, но это с лихвой окупается надёжностью и компактным внешним видом. Обязательное условие установки современного выключателя или розетки — подрозетник, который представляет собой пластиковую коробку округлой или прямоугольной формы.
Фиксация подрозетника на гипсовом растворе
Подрозетник крепится в толще стены при помощи цементного или гипсового раствора
При установке следует обращать внимание на правильную посадку коробки, края подрозетника не должны возвышаться над плоскостью стены. Чтобы во время монтажа раствор не попал во внутреннее пространство подрозетника, рекомендуется заклеивать отверстия скотчем
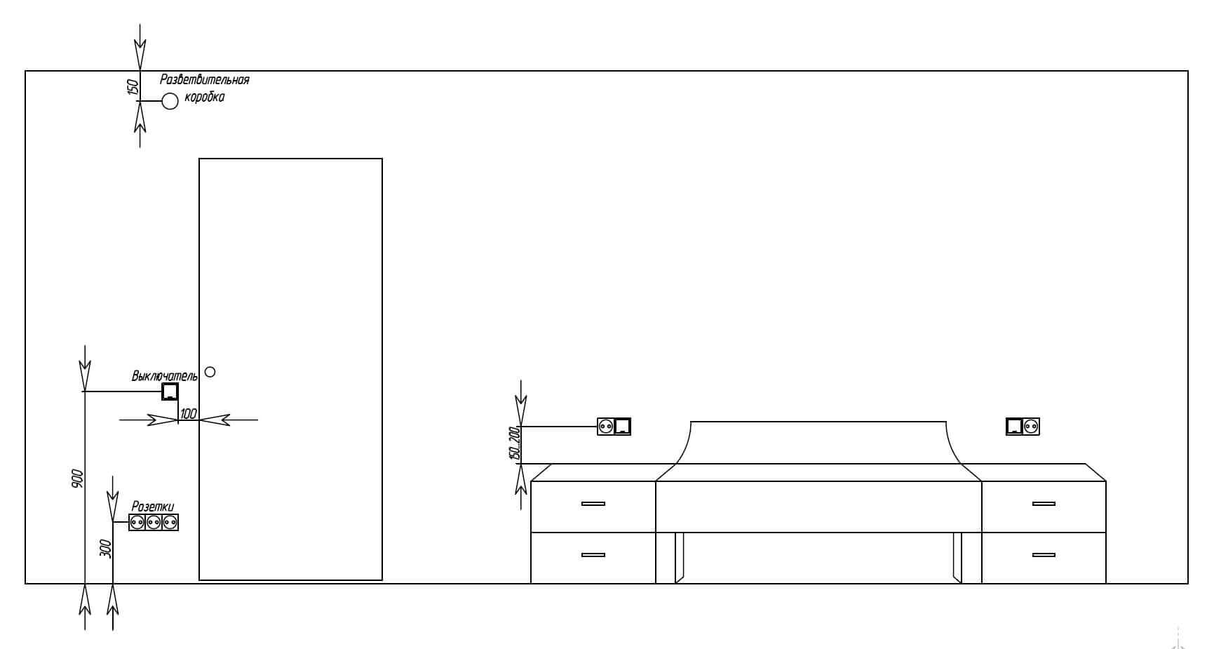
Расположение выключателей и розеток в спальне
Для удобства в спальне можно установить проходной выключатель. Так вы сможете включать свет, зайдя в комнату, и выключать, не вставая с кровати.
Кроме того, рядом с кроватью над тумбочкой или за ней в зависимости от особенностей установки, конфигурации мебели удобно будет установить розетки на высоте 30-70 см. Если спальней пользуется два человека, установите по розетке с каждой стороны у изголовья кровати. Здесь вы сможете подзаряжать телефон или другой гаджет, положив его на ночь рядом с кроватью на тумбе.
Определитесь с количеством розеток в зависимости от того, сколько у вас гаджетов, требующих регулярной подзарядки. Удобнее всего установить двойные розетки с каждой стороны изголовья кровати. Так кроме телефона здесь можно будет включить настольную лампу, другой гаджет.
Кроме того, розетка в спальне нужна напротив кровати в месте установки телевизора. Здесь стоит установить двойную или тройную розетку, а также проложить кабель для телевидения. При установке в спальне кондиционера розетка нужна и для него.
Если в комнате планируется установка письменного стола, розетки нужны и возле него. Можно сделать их над рабочей поверхностью на высоте 20 см или внизу под столом – это при условии, что сюда будет свободный доступ.
Розетки на кухне
Ни в коем случае нельзя подключать холодильник при помощи удлинителя. Именно поэтому розетка на кухне должна быть установлена не просто в необходимом месте, но и с учетом данного ограничения.
Если говорить о кухонной или же в целом бытовой технике, то здесь анализируя как заменить старую розетку на новую лучше всего ее просто вывести на фартук. В дальнейшем вы сможете подключать туда и блендер, и чайник, и мультиварку в течение дня.
Важный момент. Для работы микроволновки и телевизора на кухне лучше всего заранее сделать специальный замаскированный выход. Если розеток в необходимых местах кухни будет мало, то можно выводить их будет даже на боковую поверхность нижнего из кухонных шкафчиков. Для маскировки гнезда можно использовать откидную секцию современного типа на петлях.
Правила размещение выключателей
Одним из самых надежных вариантов размещения розеток и выключателей является евростандарт
Существует два стандарта размещения выключателей и каждый из них имеет свои преимущества:
- Советский. Розетки устанавливают на высоте 90 см от пола, выключатели – 1,5-1,6 м. В этом случае маленькие дети не дотягиваются руками до прибора, поэтому находятся в безопасности. В то же время взрослым не приходится нагибаться, чтобы включить технику в розетку.
- Евростандарт. Розетки – на уровне 30 см от пола, выключатели – на высоте 90 см от покрытия. Электрические точки не бросаются в глаза, зачастую скрыты мебелью. Выключатели доступны даже детям, а взрослым не нужно поднимать руку, чтобы включить свет.
Выбирая выключатели, следует знать, что электроприборы подобного рода имеют разную степень влагозащиты. Для влажных помещений нужно приобретать прибор с защитой от проникновения и попадания влаги либо выносить его за пределы комнаты.
Схема расположения
По советам профессионалов мы сделали пошаговую инструкцию по выбору расположения электроточек в спальне. Все шаги делать до монтажа проводки и штробления стен, карандашом или маркером на стенах.
Первый шаг – считаем количество оборудования, выше описан типовой набор, у нас вышло около 9 розеток для него.
Второй шаг — разбиваем комнаты на зоны и определяем, как будем подключать оборудование. Итак, для подключения телевизора нужно установить блок из 3 и более розеток, можно установить по 2 двойных или 3-4 одинарных за телевизором. Если он стоит на тумбе – возможна установка вдоль плинтуса, а если он подвешен на стене – 130-150 сантиметров прямо за телевизором. Так вы сможете скрыть провода и улучшить эстетический вид комнаты.


Под рабочее место на самом деле достаточно и 2 электроточек, ведь компьютерную технику положено подключать через сетевой фильтр. От него запитаем и акустическую систему, и роутер, и другие сопутствующие приборы, а ко второй подключим настольную лампу.

Высота установки в этом случае должна быть немного выше стола. При условии, что рабочие столы в среднем по 75-80 см, значит устанавливаем их на высоте 90-100 см или под ним – высота 30-60 см.

Если у вас большая спальня и с каждой стороны возле кровати стоит прикроватная тумбочка, то возле неё устанавливаем по 2 розетки: 1 для светильника и 1 для зарядки мобильных устройств. Если вы обычно заряжаете что-то еще кроме смартфона или часто работает за ноутбуком лёжа в постели, то будем идеальным решением установить 2 или 3 с каждой стороны возле кровати на расстоянии вытянутой руки. Правильное их расположение на 10-20 сантиметров над тумбочкой. Они обычно невысокие, значит розетка будет установлена на высоте около 60-80 см.

И около стола для макияжа или трюмо устанавливаете две розетки – одна для светильника, а вторая для фена и плойки, например. Как её расположить решайте, опираясь на длину проводов. Оптимальной будет установка на высоте 120 см от пола.
Третий шаг – нужно определить достаточно ли мест для подключения приборов в спальне и не создается ли впечатление что их слишком много. Если розетки ощутимо портят внешний вид помещения, можно визуально уменьшить количество. Более точно подойдите к вопросу где их ставить. Например, если возле прикроватных тумбочек вы решили установить 4 розетки, посмотрите где они будут лучше смотреться вверху или внизу у кровати, перенеся некоторые за мебель или ближе к плинтусу. Кстати, если вы в этой комнате будете гладить белье – также позаботьтесь о подключении утюга около свободного угла или стены.

Также рекомендуем посмотреть видео, на котором наглядно показывается, где лучше установить выключатели и розетки в спальне:
Для каждой спальни правильное расположение всех элементов интерьера подбирается индивидуально. Поэтому данную статью следует рассматривать как один из вариантов решения задачи. Размещение розеток в спальне в большей степени зависит от количества оборудования и привычек жильцов. Возможно вам будет удобно вообще разместить блок из дюжины точек для подключения питания в одном ряду где-нибудь возле стола или тумбы. Также немаловажную роль играет дизайн и размеры помещения.
Также читают:
- Как расположить розетки на кухне
- Правильное размещение светильников на потолке
- Как разметить стены под электропроводку
Высота установки выключателей и розеток в квартире своими руками
Перечислим основные рекомендации, которые проверены практикой и не противоречат безопасности в жилых помещениях.
Проводка на кухне
- Стиральная и посудомоечная машина — 15–20 см. от пола.
- Питание кухонных электроприборов (чайник, тостер, мультиварка и т.д.). Блок розеток выводится на уровень 20 см. от столешницы.
- Для вытяжки отводится отдельная точка питания в 2 м. от пола.
- Встроенную в шкафы технику лучше всего подключать из розеток, расположенных за стенками мебели. Для свободного к ним доступа выпиливается отверстие в задней стенке. Оптимальное расстояние — 40–60 см. от пола.
- Для подсветки подвесных шкафов рекомендуется размещать розетки на уровне 10 см. над корпусом мебели.
Розетки и выключатели в гостиной и спальне
- В гостиной комнате располагается розетка для питания телевизора на высоте 1,3 м. от пола. На этом же уровне принято устанавливать розетку для подключения роутера. Сюда же подводят слаботочный кабели компьютерной сети и телевизионной антенны.
- Возле письменного стола размещают несколько розеток. Один блок, состоящий из 2 или 3 розеток, располагают на уровне 30 см. от пола. И второй блок — на высоте 15 см. от уровня столешницы, для подключения настольной лампы или зарядки ноутбука (телефона, планшета).
- Розетки для торшера, пылесоса или музыкального центра удобно размещать на высоте 30 см. от поверхности пола.
- Управление главной люстрой или точечными светильниками на потолке осуществляется выключателем, расположенным у входа в гостиную. Как правило, здесь устанавливают выключатель с несколькими клавишами — это позволяет варьировать интенсивность освещения.
- Спальня оборудуется одним общим выключателем на входе и двумя выключателями по обеим сторонам двуспальной кровати. Там же устанавливают по розетке, что бы можно было, не вставая с постели, поставить на зарядку телефон, подключить электронный будильник и т.д. Удобная высота — 0,7 м. от пола.
Электроточки питания в ванной комнате
В связи с повышенной влажностью и возможным возникновением брызг, рекомендуется подключать все розетки в ванной комнате через УЗО. Расстояние от умывальника и ванной (душевой кабинки) до розетки менее 60 см. запрещается.
Для электроприборов рекомендованная высота установки розеток:
- стиральная машина — 1 м.;
- водонагревательный бойлер — 1,8 м.;
- дополнительная точка питания для бритвы или фена — 1,1 м.
В ванной комнате рекомендуется устанавливать розетки с индексом IP 66
Выключатели света устанавливаются снаружи, на входе в санузел.
Видео: розетки на кухне
Самостоятельное проведение работ по замене и переносу «электро точек» подразумевает прямой контакт с токами высокого напряжения. Даже слабые электрические удары иногда приводят к остановке сердца или становятся причиной нервных расстройств. Перед началом работ нужно отключать подачу тока в квартиру.
Существующие нормативы
Как рассчитать необходимое количество розеток и выключателей в квартире. Рекомендации от Shop220
- Подробности
- Опубликовано 16.07.2014 06:29
- Просмотров: 15366
Современная квартира – это не просто жилище человека. Она разделена на несколько зон различного функционального назначения, каждая из которых имеет индивидуальную планировку и расстановку мебели, оснащена самостоятельной системой освещения.
Чтобы избежать разочарования от вида висящих проводов и удлинителей нужно ответственно подойти к планированию помещения квартиры еще на стадии начала ремонта.
Возьмем за основу стандартную планировку двухкомнатной квартиры и выделим в ней 6 основных зон:
Зона кухни;Первая комната – зал;Вторая комната – спальня;Ванная комната и санузел;Зона прихожей;Балкон или лоджия.
Размещение розеток на кухне необходимо выполнять в следу





























